Solidarni z Ukrainą
Skontaktuj się z nami
+(48)
502 115 439,
+(48)
501 263 547
info@tambud.pl
Home
Oferta
O firmie
Realizacje
Kredyty
Kontakt
Inwestycja
Osiedle Avenue
Rumia ul. Dębogórska
wstecz
O inwestycji
Lokalizacja
Galeria
Tabela mieszkań
Kontakt
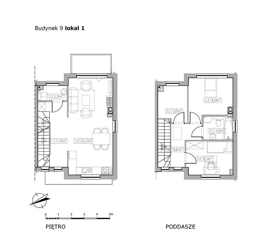
B9/1
Pow. mieszkania:
106,74 / 72.21m2
Lokalizacja:
Rumia ul. Dębogórska
Piętro:
Szeregowiec
Pokoje:
4
Piwnica:
nie
Miejsce parkingowe / Garaż:
garaż
Cena:
Zapytaj zł
więcej informacji
Cena:
Zapytaj zł
najniższa cena z 30 dni przed obniżką
Cena (vat 8%):
zł
Cena za m2 (vat 8%):
zł
Garaż (vat 8%):
zł
wliczone w cenę lokalu
Cena pomieszczeń przynależnych (vat 8%):
zł
wliczone w cenę lokalu
Cena za elementy poza budynkiem (vat 23%):
zł
Historia cen:
Data
Zmiana
Cena
Status:
sprzedane
Pobierz kartę mieszkania
Zapytaj o mieszkanie
+(48) 502 115 439
+(48) 501 263 547